Zu Verkaufen 1’690’000 CHF - Etagenwohnung
Mehr Raum. Mehr Ruhe. Mehr Zuhause?
Diese aussergewöhnliche 4.5-Zimmer-Wohnung in Jona verbindet Grosszügigkeit mit Qualität und Architektur mit Lebensgefühl. Weite Räume, viel Licht und eine hochwertige Materialisierung schaffen ein Zuhause mit Charakter.
Ein besonderes Highlight bildet die rund 88 m² grosse Terrasse, die den Wohnraum nach draussen erweitert und vielseitig nutzbar ist.
Die Nähe zum Zürichsee verleiht dem Wohnort zusätzliche Attraktivität und macht spontane Auszeiten im Grünen oder am Wasser jederzeit möglich.
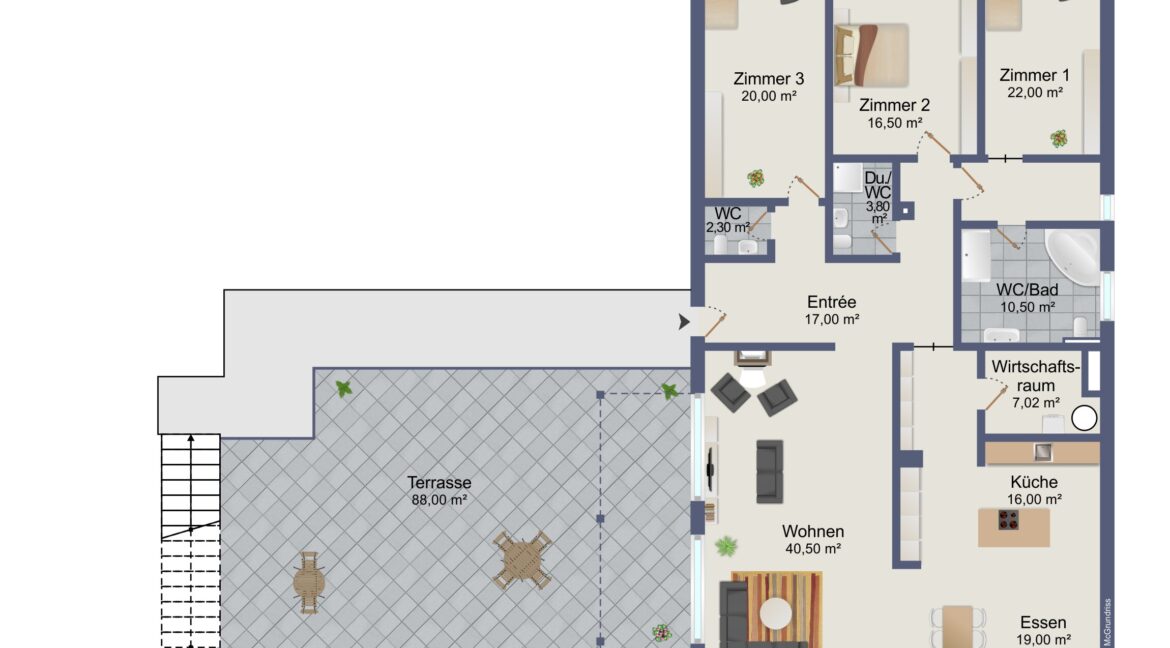
Die wichtigsten Merkmale auf einen Blick:
– 4.5-Zimmer-Wohnung im 1. Obergeschoss
– Beeindruckende Terrasse mit ca. 88 m²
– Zürichsee in ca. 20 Gehminuten erreichbar
– Ca. 175 m² Wohnfläche mit grosszügigem, offenem Grundriss
– Wohn- und Essbereich mit 40.5 m²
– Schwedenofen
– Neue Eichenparkettböden und frisch gestrichene Wohnung
– Offene, moderne Küche (16 m²) mit Kochinsel und Bosch-Küchengeräten
– Drei grosszügige Zimmer (ca. 22 m² / 20 m² / 16.5 m²)
– Hauptbad mit Wellness-Charakter (ca. 10.5 m²) und Eckbadewanne, Walk-in-Dusche, Doppellavabo
– Viele Einbauschränke
– Zusätzliche Walk-in-Dusche /WC
– Separates Gäste-WC
– Eigener Wirtschaftsraum mit WM/Tumbler
– Hobbyraum (nicht beheizt) ca. 14 m² und separater Keller
– Garagebox und 3 Aussenparkplätze
– Wärmepumpe und Bodenheizung
– Attraktive Festhypothek kann übernommen werden
– und vieles mehr
Dank der intelligenten Raumaufteilung eignet sich diese Wohnung ideal für Paare mit hohem Platzanspruch, Familien oder Berufstätige mit Homeoffice-Bedarf, die Wert auf Raum, Komfort und Qualität legen und ein Zuhause suchen, das sich flexibel an unterschiedliche Lebensphasen anpasst und langfristig überzeugt.
Haben wir Ihr Interesse geweckt? Gerne präsentieren wir Ihnen diese besondere Wohnung persönlich und freuen uns auf Ihre Kontaktaufnahme.
Bei dem in dieser Verkaufsdokumentation ausgewiesenen Verkaufspreis handelt es sich um einen Richtverkaufspreis. Liegen mehrere gleichwertige Kaufangebote vor, kann auf Wunsch der Eigentümerschaft eine transparente, einmalig stattfindende Anpassung der Angebote vorgenommen werden. Der Kaufzuschlag obliegt der Eigentümerschaft.
Die in dieser Dokumentation gemachten Angaben dienen der allgemeinen Information und erfolgen ohne Gewähr. Sie bilden nicht Bestandteil einer vertraglichen Vereinbarung. Die Grundrisse sind nicht zwingend massstabsgetreu. Irrtum und Zwischenverkauf vorbehalten. Besichtigungen werden durch die Früh Immobilien Dienstleistungen AG organisiert und durchgeführt. Die Parteien teilen die Grundbuch- und Handänderungskosten, eine allfällige Grundstückgewinnsteuer wird durch den Verkäufer getragen.
Wir stehen Ihnen mit unserer Erfahrung und mit unseren fachlichen Kompetenzen beratend zur Seite. Im vertrauenswürdigen Umgang mit unseren Kunden und Geschäftspartnern sehen wir den Schlüssel zum Erfolg. Aus unseren 50 Jahren Erfahrung wissen wir, dass ein guter zwischenmenschlicher Kontakt und Dialog meist zu den besten Ergebnissen führt.
- Zimmer insgesamt: 4,5
- Balkon-/Terrassenfläche: 88 m²
- Anzahl Stellplätze: 3
- Anzahl Etagen: 2,0
- Etage: 1
- monatl. Betriebs-/Nebenkosten: 6.000 CHF
- Heizkosten in Warmmiete enthalten: ja
- Anzahl Außenstellplätze: 3
- Außenstellplatzkaufpreis: 65.000 CHF
- Sonstige Fläche: 14 m²
- Balkone: 1
- Stellplatzart: Garage, Freiplatz
- Baujahr: 1949
- Zustand: vollsaniert
- Letzte Modernisierung: 2025
- Immobilie ist verfügbar ab: ab sofort































