charmante 2.5-Zimmerwohnung
Wir vermieten per sofort oder nach Vereinbarung diese neu erstelle…
2’950 CHF mtl.
Schulerweg 2, 8304 Wallisellen CH
Mieten
2’050 CHF mtl.
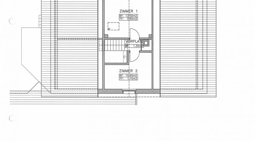
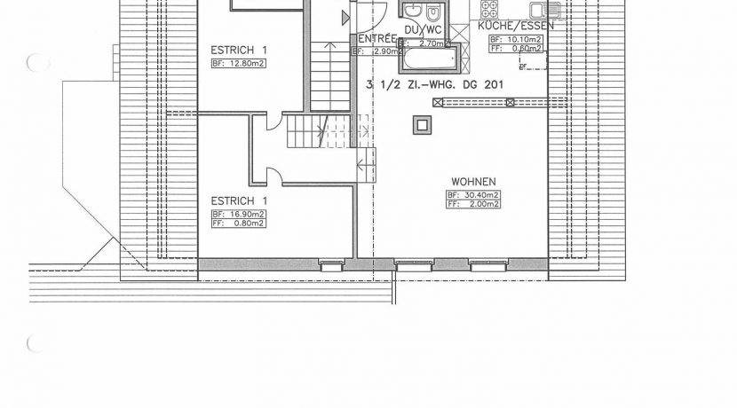
Wir vermieten per 01.10.2024 im Zentrum von Wallisellen eine gemütliche 3.5 Zimmerwohnung im Dachgeschoss.
Einkaufsmöglichkeiten befinden sich in unmittelbarer Nähe der Liegenschaft. In 2 Min. zu Fuss erreichen Sie die nächste Busstation.
Die sonnige Lage über dem flachen und weiten Glatttal und die hervorragenden kommunalen Infrastrukturen sowie die Stadt- und Flughafennähe machen Wallisellen zu einem überaus attraktiven Wohnort.
Die Wohnung verfügt über:
– Hellen Laminatboden im Wohn- und Schlafbereich
– Offene Küche mit Essbereich
-Maisonette Stil
-Einbauschränke
Die Besichtigungen finden an folgenden Terminen statt:
05.07.2024 von 18:00 Uhr bis 19:00 Uhr
10.07.2024 von 18:00 Uhr bis 19:00 Uhr
11.07.2024 von 18:00 Uhr bis 19:00 Uhr
Wir vermieten per sofort oder nach Vereinbarung diese neu erstelle…
2’950 CHF mtl.
Angrenzend an die Naherholungszone Katzensee, im aufstrebenden Wohngebiet "Ruggächer" vermieten…
3’580 CHF mtl.
Wir vermieten per sofort oder nach Vereinbarung diese schöne 3.5-Zimmer-Attikawohnung.
Die…
3’100 CHF mtl.